

Sauna Polaris Large
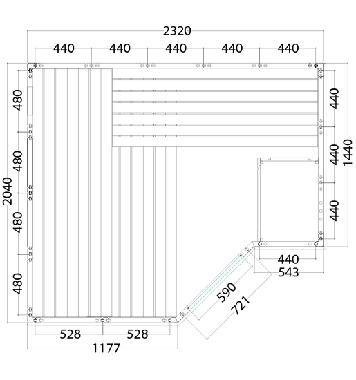
Grundriss Polaris Large
Polaris Large
Massivholzsauna mit viel Platz
Unser Modell Polaris Large ist eine Kabine aus massiver Fichte. Die Inneneinrichtung „Prestige“ besteht aus Lindenholz. Ein massives Dachelement mit Dachkranz rundet den Aufbau ab. Die Kabinengröße beträgt 2340 x 2060 x 2040 mm.
Weitere Informationen
Polaris Large - saunieren ohne Grenzen
Produktdetails
- Art.-Nr. POLARIS-L / 1-030-277
- Spiegelverkehrter Aufbau möglich
- Türe (590 x 1915 x 8 mm) links oder rechts anschlagbar
- 3 lfm Silikonkabel 5 x 2,5 mm² für Saunaofen
- 3 lfm Silikonkabel 3 x 1,5 mm² für Saunalicht
- Montagematerial und -anleitung
- Empfohlene Ofenheizleistung: 7,5-9 kW
Downloads
Inneneinrichtung „Prestige“
aus Linde
- 3 Bänke (2 x 620 mm und 1 x 530 mm)
- 2 Kopfstützen
- Lüftungsschieber
- Rückenlehnen
- Zwischenbankverblendung
- Ofenschutzgitter
- Bodenrost
- Lampe mit Lampenschutz ohne Leuchtmittel
Beratungstermin
vereinbaren
Öffnungszeiten
Montag
8:30 bis 16:00 Uhr
Mittwoch
8:30 bis 16:00 Uhr
Donnerstag
8:30 bis 16:00 Uhr
Ausstellung
86504 Merching
Am Lerchenberg 4a
Beratungstermine auch außerhalb der Öffnungszeiten und am Wochenende möglich – Termine nach Absprache – rufen Sie uns an!






