

Gartensauna Terra 3
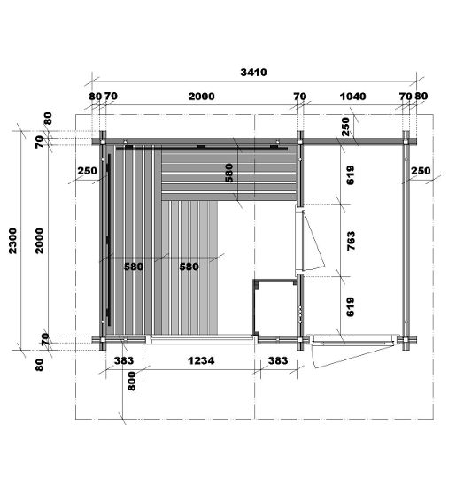
Gartensauna Terra 3 Grundriß
Terra 3
Hochwertige Verarbeitung,
Qualität und Langlebigkeit
Eine Gartensauna bietet seit jeher die ursprünglichste und traditionellste Form des Saunabadens. Erleben Sie dieses Vergnügen im eigenen Saunahaus.
Auf Wunsch kümmern wir uns auch um die Vorbereitungsarbeiten für das Aufstellen. Wir beraten Sie bei der Planung des geeigneten Stellplatzes, der Ausführung des Fundaments und der Stromzuleitung.
Für das Modell Terra 3 ist auch Maßanfertigung möglich.
Weitere Informationen
Außensauna - Standard oder nach Maßanfertigung
Haus
- Blockbohlen aus 70 mm nordischer Fichte mit Ecküberstand, Gewindestangen
- Fußboden aus 24 mm Bodendielen
- Grundrahmen imprägniert
- Satteldach mit 25 cm Überstand seitlich und hinten sowie 80 cm vorne,
- Firsthöhe ca. 2820 mm, Dachneigung: 15°
- Tür 82 x 196 cm mit Isolierglas
- Saunafenster feststehend mit Isolierglas
- Innenfläche: 6 m²
Downloads
Sauna
- Inneneinrichtung Norma aus Weichholz in hochwertiger Espe
- Liegen 58 cm breit
- 2 Rückenlehnen, 2 Kopfstützen, Lüftungsschieber mit Insektengitter
- Zwischenbankverkleidung, Ofenschutzgitter, Fußrost
- moderner Eckblendschirm + Saunalampe
- Glastür klar (1844 x 625 x 8 mm)
- Verpackungsgröße (BxLxH): ca. 120 x 470 x 120 cm
- Gewicht: ca. 1700 kg
Beratungstermin
vereinbaren
Öffnungszeiten
Montag
8:30 bis 16:00 Uhr
Mittwoch
8:30 bis 16:00 Uhr
Donnerstag
8:30 bis 16:00 Uhr
Ausstellung
86504 Merching
Am Lerchenberg 4a
Beratungstermine auch außerhalb der Öffnungszeiten und am Wochenende möglich – Termine nach Absprache – rufen Sie uns an!






